Cheyenne Mountain
The FM broadcast industry has undergone many changes since station ownership rules were relaxed in the 1990s. The consolidation of stations led to the construction of shared transmission facilities to reduce operating costs. It is common practice for multiple FM transmitters to share a single antenna and transmission line. These Master FM Antenna systems tend to fall into two general categories: the large system and the small system.
A typical large master antenna system employs a panel antenna, 9” diameter rigid coaxial line, constant impedance combiner modules, and supports up to 10 stations across the entire 88-108 MHz FM band. The advantages of the large master antenna are wide bandwidth, nearly constant pattern with frequency, and high power. The main disadvantage is cost. The less expensive small master, on the other hand, is a side-mounted antenna capable of handling up to three stations over 5 MHz. The pattern may not be constant at all frequencies.
There is a significant gap in cost and performance between the small master and the large master. There are many situations where three or four stations wish to share a master antenna across 10 MHz, but the cost of a large master is prohibitive. Certain side-mount antenna designs can be broadbanded to 10 MHz or more and this result led us to consider a compromise system between the traditionally large and small systems.
The process of specifying, designing, and constructing a master FM antenna can best be illustrated through a real-world example. This case study describes a four-station master FM antenna system recently installed on Cheyenne Mountain in Colorado Springs, Colorado.
Master antenna systems introduce unique design issues. Some of these issues include pattern optimization across a wide bandwidth, broadbanding, transmission line resonance, peak power limitations, and transmitter intermodulation. We address each of these topics in this case study.
In Colorado Springs, virtually all full power FM stations broadcast from Cheyenne Mountain, located six miles southwest of the city. At 9,400 feet, Cheyenne Mountain is 3,400’ above downtown Colorado Springs. The main advantage of the site is its ability to provide a 70 dBu signal level contour over Colorado Springs and Pueblo (see Figure 1). The 60 dBu contour reaches a population of over 900,000 (2010 U. S. Census). The site is owned by Cheyenne Propagation Company and managed by Mr. Jim Voige.
In 1992, the company faced a problem. Because of an FCC frequency change, a Pueblo, Colorado FM station (KCCY) was able to overcome a short spacing problem and move from its current tower site at 5,300 above mean sea level (AMSL) to Cheyenne Mountain at 9,400’ AMSL. Unfortunately, Cheyenne Propagation had no vacant tower space. The company could have built a single station facility for KCCY, but there were several other FM stations broadcasting from Cheyenne Mountain with various tower structural and RF exposure problems. Cheyenne Propagation decided to construct a multiple station master FM facility, gambling that they would be able to attract other FM stations to combine with KCCY.
At the time, there were ten Class C FM stations broadcasting from Cheyenne Mountain. Their frequencies spanned 92.9 MHz to 102.7 MHz. As many as four of these stations might combine, but it was not certain which four stations would eventually commit. Therefore, Cheyenne Propagation needed an antenna system that would span roughly 10 MHz and be able to handle the power of four Class C stations.
Cost Analysis
The first step in building a master FM antenna is to justify the project on economic grounds. System costs include the tower, antenna, transmission line, and combiner module. The approximate costs per station for a single station, large master antenna (four stations), and small master (four stations) in 1992 were $163,000 for a single station, $147,500 for a large master and $90,000 for a small master. Although the large master offers some savings over four individual systems, the small master gains additional savings of almost $ 60,000. Thus, the small master antenna was our first choice if we could achieve 10 MHz of bandwidth and sufficient power handling capability.
Technical Challenges
The principal technical challenges fell into four areas: antenna pattern, bandwidth, power, and intermodulation products.
Antenna Pattern
Because the tower structure and orientation dominate the antenna pattern at VHF, the tower was selected first. Space was tight on Cheyenne Mountain, so Cheyenne Propagation required a self-supporting tower. The tower was designed for a large antenna load, including a top-mount VHF television antenna. Because the site is located in a high wind area, the tower was also designed to withstand 120 mph winds with 1/2” radial ice (IAW TIA-222-F). These design loads resulted in a tower with a wide facewidth — 13 feet. The wide facewidth presented two problems for the pattern. First, the large surface area of steel introduced strong reflections, and second, some tower member lengths were multiples of one quarter wavelength at 96.9 MHz.
Bandwidth
For cost reasons, most side-mount antennas are fed from a single point, at the end or center of the antenna. This type of feed results in a relatively narrow bandwidth. The key to achieving wide bandwidth is to use a branch feed where each bay is fed separately with its own transmission line. Line lengths are precision cut to achieve the proper beam tilt and null fill.
The branch feed system is used in broadband arrays primarily to keep the relative phase and amplitude constant at each bay even as the frequency varies. With a standard feed, called a “tapped feed” system, the elements are mounted in full wavelength increments so that equal phase and amplitude are fed to each bay at one frequency only. On a tapped feed antenna (end fed or center fed), the phase discrepancy is cumulative from the feed point to the farthest bay. If the carrier wavelength varies significantly from the bay spacing, this cumulative phase discrepancy results in an impedance mismatch, distorted elevation pattern and an unacceptably high voltage standing wave ratio (VSWR). The branch feed, on the other hand, allows each bay to be fed from a common point so that the phase change is not cumulative.
Another advantage of the branch feed system is the ability to reduce the physical bay spacing. For example, when the bay spacing is reduced to 3/4 wavelength, there is a partial cancellation of the signal at the zenith and the nadir. In other words, the downward radiation is reduced significantly, lowering the personnel hazard from non-ionizing radiation. This shorter spacing also reduces the number of nulls in the antenna elevation pattern. Of course, these advantages aren’t free. The antenna gain is less for shorter bay spacing. For example, an eight-bay antenna with 3/4 wavelength spacing has a gain of 3.6 versus a gain of 4.3 for full wavelength spacing.
Power
The master antenna and transmission line must be designed to handle both the average and peak power expected from four Class C FM stations at an elevation of 10,000’ AMSL. Total average power is simply the sum of the transmitter powers of the four stations. Peak power, on the other hand, is a random variable and depends on the instantaneous phase relationship between the combined signals. In the worst case, all n signals are in phase and the peak voltage is n times the voltage of a single station for equal amplitude signals. Thus, the worst-case peak power is given by
Pp = n2Pavg
where n is the number of stations to be combined and Pavg is the average power of the highest power station.
On Cheyenne Mountain, the antenna height above average terrain is 695 meters, resulting in a Class C ERP of 72 kW. The antenna chosen has a gain of 3.3 (at 96.9 MHz), so the required average power at the antenna input is 88 kW for four stations. From the equation above, the peak power requirement is 352 kW.
Intermodulation Products
Power amplifiers in FM broadcast transmitters are nonlinear devices and they will introduce strong intermodulation products, especially when external signals are introduced into the final amplifier stage. The most common intermodulation product in FM transmitters is the third order product created by the difference of the second harmonic of the carrier and the fundamental frequency of an interfering signal,
fIM = 2 f1 – f2
This product usually occurs in the FM band and is not attenuated by the transmitter’s low-pass harmonic filter. The FCC requires that full power FM broadcast transmitters attenuate their emissions to at least 80 dB below carrier level at 600 kHz and greater spacing from the carrier frequency. In a combiner, some of this attenuation is provided by mixing loss in the transmitter called “turn-around loss,” but turn-around loss is always less than the required 80 dB. In fact, at 800 kHz spacing, the turn-around loss can be less than 6 dB. Filtering is required to provide additional attenuation.
There are two types of filter modules in FM combiners: branch modules and constant impedance modules. Both types can be band reject or bandpass, but bandpass modules are preferred. The branch module is simply a multiple cavity bandpass filter. Each branch module feeds a coaxial power combiner and the output of the combiner feeds the master antenna. The main drawback of a branch combiner is the limited isolation between closely spaced frequencies. At 800 kHz spacing, the number of cavities required to achieve 40 dB isolation is five. The insertion loss and group delay of a five-cavity filter are higher than a four or three-cavity filter and may not be acceptable in many applications. Four-cavity filters are commonly used in branch combiners and they provide adequate isolation for frequencies spaced 1.4 MHz and greater.
As a rule, the level of the intermodulation product generated in the transmitter will be no greater than the level of the incoming interfering signal. In other words, turn-around loss in dB is always positive in practical situations.
Final System Specification
At this point, we have all the information needed to specify our master antenna system. The main technical specifications are summarized below:
ERP per Station 72 kW
Antenna Gain 3.3 (minimum)
Average Power 88 kW
Peak Power 352 kW
Bandwidth 10 MHz
IM Attenuation > 80 dB
Now let’s look at the actual technical solution selected for Cheyenne Mountain.
Antenna
After carefully considering the technical requirements, Cheyenne Propagation Company chose a Dielectric Communications Model DCR-M circularly polarized, 8-bay, branch fed quadrapole antenna with 3/4 wavelength spacing. The antenna was designed for 2.5° downward beam tilt and 10% null fill in the first null. Beam tilt and null fill are mandatory for mountaintop sites that are near the city of license to avoid overshooting large portions of the intended audience. The 3/4 wavelength spacing reduced the downward radiation significantly and prevented a non-ionizing radiation hazard at ground level.
Each bay of the Dielectric antenna is fed with semi-rigid and rigid lines which are capable of handling 18 kW average power and 150 kW peak power when pressurized to 1 atmosphere, sea level. However, the antenna is installed at 10,000’ AMSL and the maximum peak power ratings must be reduced to 46% of their sea level ratings. After derating for altitude, each bay’s maximum peak power rating is 69 kW peak. Because the power is shared equally by the eight bays, the antenna is capable of handling 552 kW peak. This is adequate to meet our 352 kW peak power requirement. In fact, the antenna could theoretically support five stations if the line was pressurized at all times.
The VSWR bandwidth of the Cheyenne Mountain antenna is shown below for laboratory measurements and field measurements with the antenna installed on the tower. If we define bandwidth as the frequency band where the VSWR is less than 1.2, the bandwidth of this antenna spans 92 to 105 MHz or 13 MHz total. At the factory, without the effects of the tower members, the bandwidth was 15 MHz.

Another concern was icing. Ice will change the impedance of the antenna and in some cases, force a shut down of the transmitters due to high VSWR. Although factory tests have shown that the DCR-M can withstand 1/2” radial ice and maintain a VSWR of 1.5 over 5 MHz it is difficult to test for all possible icing conditions. There are two methods to control icing: electrical heating or radomes. Electrical deicers are controlled by temperature and humidity sensors and operate only when conditions indicate a high likelihood of icing. Radomes are relatively trouble-free compared to deicers, but radomes increase the wind loading on the tower and may not be cost-effective when the cost of the stronger tower is included in the project cost. Because Cheyenne Mountain has a dry climate, the chance of severe icing is small and we eventually decided against deicers and radomes. In the unlikely event of severe icing, the transmitters will automatically power back and shut down when the VSWR exceeds 1.3.
Measured Antenna Pattern
To isolate the antenna from the tower structure, screen assemblies were installed behind each bay. Then a pattern study was conducted to optimize the pattern for coverage of Colorado Springs and Pueblo. The interactions of the antenna and the tower were too complex for accurate computer modeling (at the time) and all major U.S. FM antenna manufacturers performed measured pattern studies. Measurements are taken using either full or scale models of the tower and antenna on outdoor ranges or in an anechoic chamber. The pattern study for the Cheyenne Mountain antenna was conducted in an anechoic chamber using 4.4 to 1 scale models of the antenna and tower. When under test, the scale models of the antenna and tower are rotated together 360 degrees while receiving a signal from a source antenna. The source antenna was a cavity-backed corner reflector that can be oriented to excite either the vertical or horizontal polarization. All RF reflections are absorbed by RF absorbing material in the chamber. The signal magnitude and an azimuth value were sampled every degree and the 360 samples are stored on a hard disk for later plotting. The process is repeated for the other polarization.
To optimize the pattern, we conducted 67 azimuth patterns at different antenna orientations on the scale model of the tower. Once we were satisfied with the antenna pattern, we surveyed the tower legs and installed the tower foundation. The measured pattern for 96.9 MHz is shown below:

Note the sharp null in the horizontal polarization at 330 degrees and in the vertical polarization at 250 degrees. Fortunately, the area to be covered was strictly to the east, so these nulls were not a problem.
Transmission Line
The main transmission line is 6 1/8” rigid, capable of handling 180 kW average power and 1,200 kW peak power after derating for altitude and a VSWR of 1.15.
Another important design issue for transmission line is high VSWR at critical frequencies. Small reflections under flanged areas may add in phase at critical frequencies, causing high VSWR. The critical frequencies are given by

where m is any integer and L is the line length in feet. To avoid this problem, we chose a 17.5’ line length which does not have a critical frequency in the FM band. The transmission line and antenna are pressurized with an automatic regenerative dehydrator.
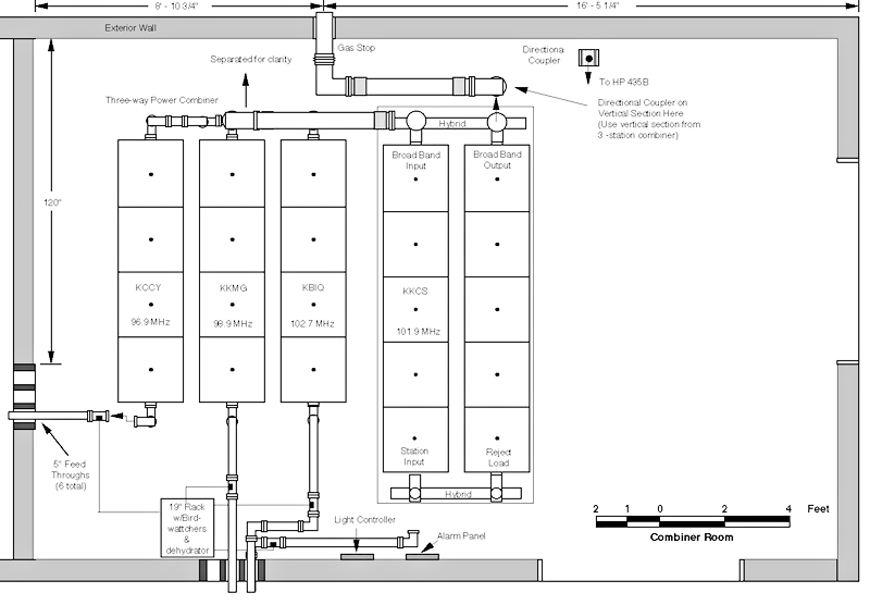
Combiner
Eventually, four stations joined the facility at full power. Their frequencies were 96.9 MHz (KCCY), 98.9 MHz (KKMG), 101.9 MHz (KKCS), and 102.7 MHz (KBIQ). The combiner employs three 4-cavity filters in a branch configuration for KCCY, KKMG, and KBIQ plus one 2×5-cavity constant impedance module for KKCS. The constant impedance module is considerably more expensive than a branch module, but it was not possible to make a four station branch combiner work for two important reasons:
- First, it is very difficult to provide a correct match at the output of a four station branch combiner. Each frequency must see a short circuit into each port of the combiner except its own. This is straightforward for two stations, difficult for three, and nearly impossible for four.
- Second, because KKCS and KIKX were spaced just 800 kHz apart, a four-station branch combiner with four-cavity filters is not feasible. There simply is not enough isolation at 800 kHz separation to meet FCC requirements. The hybrids in the constant impedance combiner provide an additional 30 dB isolation that is not possible in the branch configuration.
Given these constraints, we chose a hybrid branch/constant impedance combiner module configuration. The first three stations are separated by at least 2 MHz and four-cavity filters provide adequate attenuation of IM products. The fourth station requires a constant impedance module. The output of the three station branch combiner is connected to the broadband input of the constant impedance module and the broadband output of the constant impedance module feeds the master antenna. The combiner configuration is shown below Note that the fourth station has a more reliable connection to the antenna because it is independent of the three station branch combiner. A failure on the branch combiner would force three stations to shut down, but the fourth station would remain on the air.

Connection Process
When a new station joins the combiner, it pays a connection fee comprising two parts: (1) its share of the antenna and transmission line costs, and (2) the cost of the combiner module. The combiner module cost varies depending on whether a branch module or constant impedance module is required. The station also pays monthly rent to help defray the cost of the tower, building, and operation of the site.
When a new station is added to the system, the combiner must be disconnected from the master antenna and the stations currently on the combiner must temporarily operate from standby antennas. The output transmission line lengths are calculated, cut to length, and the combiner is assembled. After assembly, insertion loss, isolation, return loss, and group delay are measured at the input to each combiner module.
The master antenna system is owned by the Cheyenne Propagation Company, not the stations. This arrangement eliminates many potential disputes between stations and ensures that the interests of the stations are protected equally.
Conclusions
A properly designed small master antenna system can support four Class C FM stations over 13 MHz at 40% savings relative to an equivalent large master antenna. This high performance small master antenna helps bridge the traditional gap in performance and cost between a small and large master antenna. At a multiple station site, the small master antenna can help solve many problems at significantly lower cost than a single station facility or a large master antenna. Some of these problems include the following:
- Poor antenna pattern
- RF exposure hazards
- Tower structural deficiencies
- Radio frequency interference
- Zoning restrictions on number of towers

The top one-half of an 8-bay, side-mount master FM antenna.

